Skip to main content
76 South Road, Sully, CF64 5SL
  • SSTC

5 bed detached bungalow for sale

£675,000


Property Type

Detached Bungalow

Bedrooms

5

Living Rooms

3

Bathrooms

3



Property Description

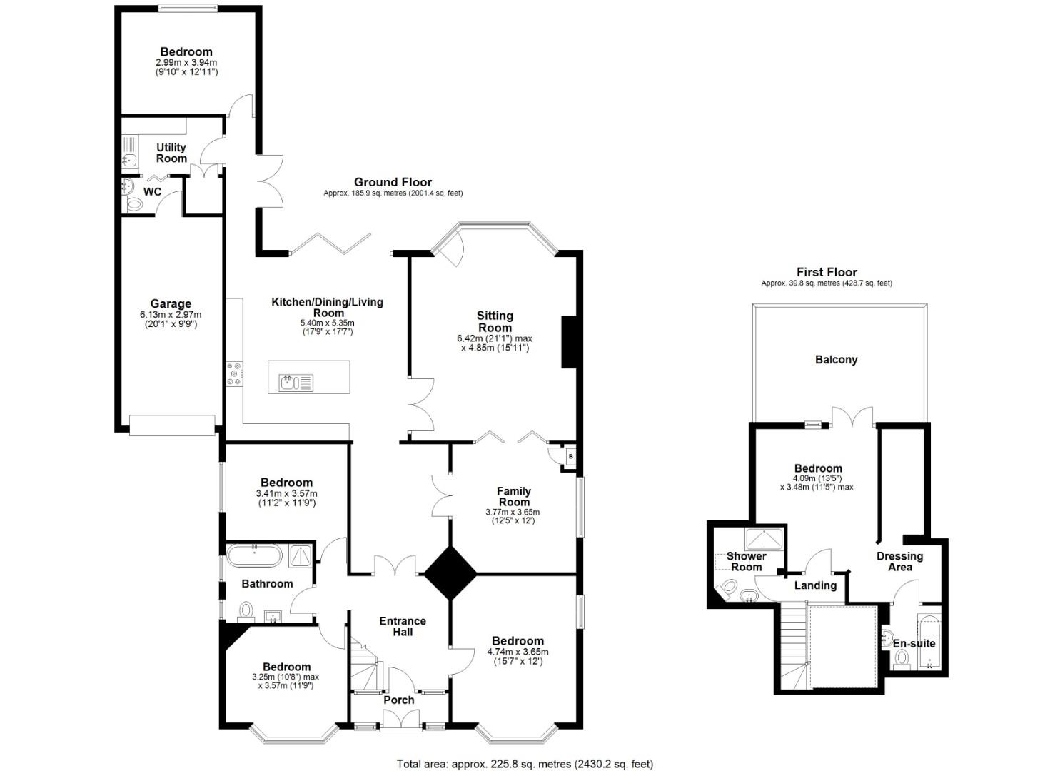
A substantial and versatile, five bedroom detached family home enjoying a large South-facing rear garden and elevated sea views. Situated in the popular village of Sully and conveniently located to Penarth Town Centre, Cardiff City Centre and the M4 Motorway. The extended accommodation briefly comprises; porch, entrance hall, spacious sitting room, kitchen/dining/living room, family room, utility room, downstairs cloakroom, four double bedrooms and a family bathroom. First floor landing, primary bedroom with dressing area, en-suite and access to a balcony enjoying elevate views. Externally the property benefits from a large driveway providing off-road parking for several vehicles, an attached single garage and a landscaped rear garden.

Ground FloorEntered via a set of uPVC double-glazed French doors into a porch. A second partially glazed hardwood door with glazed side panels leads into a welcoming hallway benefitting from tiled flooring, a vaulted ceiling with exposed wooden beams and a carpeted staircase leading to the first floor.
The spacious sitting room benefits from carpeted flooring, a central feature fireplace, a large decorative ceiling rose, a uPVC double-glazed bay window to the rear elevation with a uPVC double-glazed door providing access to the rear garden.
The kitchen/dining/living room benefits from wood effect luxury vinyl tile (LVT) flooring, recessed ceiling spotlights and a set of uPVC double-glazed bi-folding doors with built-in blinds providing access to the rear garden. The kitchen showcases a range of wall and base units with granite work surfaces. Integral appliances to remain include; an under-counter fridge, a ‘Whirlpool’ electric oven, a ‘Bosch’ dishwasher, a ‘Caple’ drinks cooler and a freestanding oven with a 7-ring gas hob and a ‘Rangemaster’ extractor fan over. The kitchen further benefits from matching granite upstands and an under-mounted stainless steel sink with a mixer tap over.
The family room is a versatile space enjoying carpeted flooring, a cupboard housing the wall-mounted ‘Ideal’ combi boiler, a set of wooden bi-folding doors providing access to the living room and a uPVC double-glazed window to the side elevation.
The utility room has been fitted with a range of wall and base units with roll-top laminate work surfaces. Space and plumbing has been provided for freestanding white goods. The utility room benefits from LVT flooring, a large recessed pantry, a composite sink with a mixer tap over and a double-glazed rooflight.
The cloakroom serving the ground floor accommodation has been fitted with a 2-piece white suite comprising; a wash hand basin and a WC set within a vanity unit. The cloakroom further benefits from continuation of LVT flooring, partially tiled splashback, an extractor fan and a door providing access to the garage.
Bedroom two is a spacious double bedroom benefitting from carpeted flooring, a ceiling rose, recessed ceiling spotlights, picture rails, a uPVC double-glazed window to the side elevation and a uPVC double-glazed bay window to the front elevation.
Bedroom three is another double bedroom enjoying carpeted flooring, picture rails, a feature fireplace and a uPVC double-glazed bay window to the front elevation.
Bedroom four is another double bedroom and enjoys carpeted flooring, picture rails and a uPVC double-glazed window to the side elevation.
Bedroom five is another double bedroom benefitting from LVT flooring and a uPVC double-glazed window to the rear elevation.
The family bathroom has been fitted with a 4-piece white suite comprising; a freestanding bath with a handheld shower attachment, a shower cubicle with a thermostatic rainfall shower over and handheld shower attachment, a pedestal wash hand basin and a WC. The bathroom further benefits from tiled flooring, partially tiled walls, ceiling spotlights and two obscure uPVC double-glazed windows to the side elevation.

First FloorThe first floor landing benefits from carpeted flooring and recessed ceiling spotlights.
Bedroom one is a spacious double bedroom benefitting from wood effect laminate flooring, exposed wooden beams, recessed ceiling spotlights, a dressing area, a uPVC double-glazed window to the rear elevation and a set of uPVC double-glazed French doors with built-in blinds providing access to a balcony benefitting from elevated sea views. The en-suite has been fitted with a 3-piece white suite comprising; a panelled bath with a handheld shower attachment, a pedestal wash hand basin and a WC. The en-suite further benefits from tiled flooring, tiled walls, recessed ceiling spotlights, exposed wooden beams and a double-glazed rooflight.
The first floor shower room has been fitted with a 3-piece suite comprising; a large walk-in shower cubicle with a thermostatic rainfall shower over and a handheld shower attachment, a wash hand basin and a WC. The shower room further benefits from tiled flooring, partially tiled walls/splashback and a double-glazed rooflight.

Gardens And Grounds76 South Road is approached off the road onto a large tarmac driveway providing off-road parking for several vehicles, beyond which is an attached single garage.
The large, South-facing rear garden is predominantly laid to lawn with a variety of mature shrubs, borders and trees. A spacious terrace provides ample space for outdoor entertaining and dining.

Additional InformationAll mains services connected.
Freehold.
Council tax band 'G'.
EPC rating; ‘D’.


Key Features

  1. A substantial and versatile, five bedroom detached family home.
  2. Enjoying a large South-facing rear garden and elevated sea views.
  3. Situated in the popular village of Sully.
  4. Conveniently located to Penarth Town Centre, Cardiff City Centre and the M4 Motorway.
  5. Porch, entrance hall, spacious sitting room, kitchen/dining/living room, family room, utility room, downstairs cloakroom.
  6. Four double bedrooms and a family bathroom.
  7. First floor landing, primary bedroom with dressing area, en-suite and access to a balcony enjoying elevate views.
  8. Externally the property benefits from a large driveway providing off-road parking for several vehicles.
  9. Attached single garage.
  10. Landscaped rear garden.

76 South Road, Sully, CF64 5SL

Floor Plans (1)

Floor plan

76 South Road, Sully, CF64 5SL

£675,000

Similar Properties near Penarth

  • 107 Lavernock Road, Penarth, CF64 3QG
    • SSTC

    107 Lavernock Road, Penarth, CF64 3QG

    3 bed semi-detached house for sale

    Offers In Excess Of £699,950

  • 11 The Grange, Baroness Place, Penarth, CF64 3UW

    11 The Grange, Baroness Place, Penarth, CF64 3UW

    4 bed detached house for sale

    £650,000

  • 17 Charteris Close, Penarth, CF64 5RT

    17 Charteris Close, Penarth, CF64 5RT

    3 bed detached bungalow for sale

    £650,000

  • 171 Stanwell Road, Penarth, CF64 3LN
    • Sold

    171 Stanwell Road, Penarth, CF64 3LN

    4 bed terraced house for sale

    Offers In Excess Of £650,000

Register interest now

Let’s talk

Update your browser to view this website correctly. Update my browser now

×