Skip to main content
Apartment 1, Pen Y Garth Mansions, 2 Stanwell Road, Penarth, CF64 3EA

2 bed apartment for sale

£675,000


Property Type

Apartment

Bedrooms

2

Living Rooms

1

Bathrooms

2



Property Description

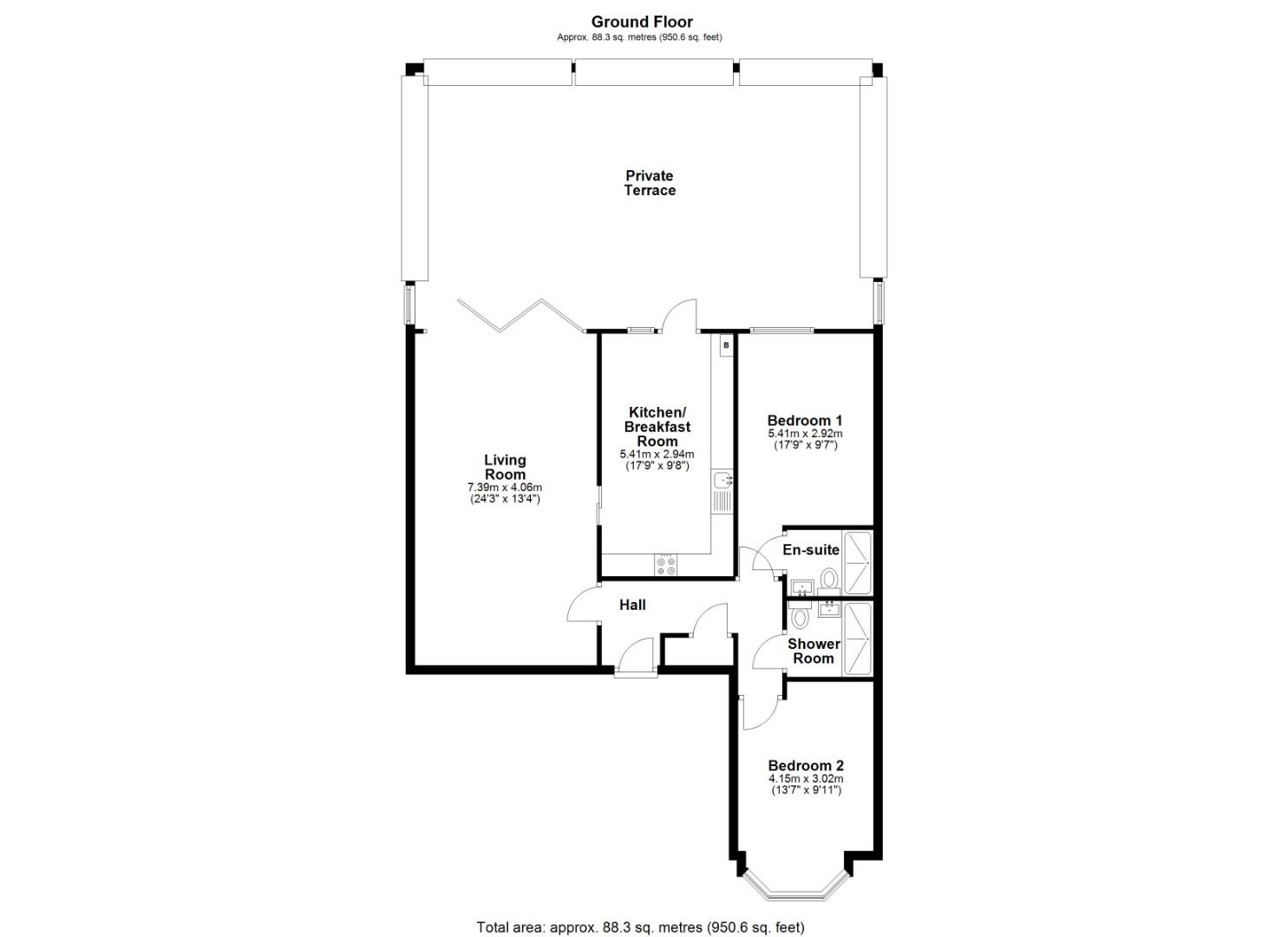
A beautifully presented, two bedroom ground floor apartment enjoying a 76 sq.m private South-facing terrace. Situated in the heart of Penarth Town Centre and conveniently located to local amenities, Penarth Pier, Cardiff City Centre and the M4 Motorway. Accommodation briefly comprises; entrance hall, spacious living room with bi-folding doors, kitchen/breakfast room, spacious double bedroom with fitted storage and en-suite, second double bedroom with fitted storage and a family shower room. Externally the property benefits from a private gated entrance providing off-road parking with two allocated parking spaces and additional visitor parking available, a private terrace with remote controlled retractable walls and canopy with infrared heating and access to communal gardens.

AccommodationA secure communal entrance benefitting from carpeted flooring and a carpeted staircase leading to all floors. Apartment 1 is located on the ground floor.
Entered via a solid hardwood door into a welcoming hallway benefitting from engineered wood flooring, recessed ceiling spotlights, a recessed storage cupboard and a wall-mounted intercom system.
The spacious living room enjoys continuation of engineered wood flooring, recessed ceiling spotlights, a range of recessed storage cupboards and a set of aluminum double-glazed bi-folding doors providing access onto the private terrace.
The kitchen/breakfast room showcases a range of wall, base and tower units with granite work surfaces. Integral appliances to remain include; a ‘Lamona’ electric oven/grill, a ‘Baumatic’ 4-ring gas hob with a feature extractor fan over, a ‘Baumatic’ dishwasher, an ‘Indesit’ fridge/freezer, an additional ‘Smeg’ full height freezer, a ‘Baumatic’ washer/dryer and a ‘Smeg’ microwave. The kitchen further benefits from tiled flooring, recessed ceiling spotlights, partially tiled splash-back, an under-mounted stainless steel sink with a ‘Quooker’ hot water tap over, a cupboard housing the wall-mounted ‘Ideal’ combi boiler and an aluminum double-glazed door with a double-glazed side panel providing further access to the terrace.
Bedroom one is a spacious double bedroom enjoying carpeted flooring, recessed ceiling spotlights, a range of fitted wardrobes and an aluminum double-glazed window to the rear elevation. The en-suite has been fitted with a 3-piece white suite comprising; a large walk-in shower cubicle with a thermostatic rainfall shower over and handheld shower attachment and a wash hand basin and a WC set within a vanity unit. The en-suite further benefits from tiled flooring, partially tiled walls, recessed ceiling spotlights, a wall-mounted chrome towel radiator and an extractor fan.
Bedroom two is another double bedroom and benefits from carpeted flooring, recessed ceiling spotlights, a range of fitted wardrobes and a double-glazed wooden bay window with bespoke fitted shutters to the front elevation.
The family shower room has been fitted with a 3-piece white suite comprising; a large walk-in shower cubicle with a thermostatic rainfall shower over and a handheld shower attachment and a wash hand basin and a WC set within a vanity unit. The shower room further benefits from tiled flooring, partially tiled walls, recessed ceiling spotlights, a wall-mounted chrome towel radiator and an extractor fan.

Gardens And GroundsApartment 1, Pen-Y-Garth Mansions benefits from a 76sq.m private terrace with remote controlled, retractable canopy over. The terrace provides ample space for outdoor entertaining and dining and further benefits from feature lighting, full electrical connections and a gate providing access onto the communal gardens which are predominantly laid to lawn with a variety of mature shrubs and borders.
The property benefits from two allocated parking spaces with additional visitor parking available.

Additional InformationAll mains services connected.
Leasehold. - 999 years from 2019 (approx. 994 years remaining).
We have been reliably informed that the service charge is £702pa.
We have been reliably informed that the ground rent is £200pa.
We have been reliably informed that upon completion of a purchase to a new owner, the property will be transferred to a Share of the Freehold.
Council tax band 'D'.
EPC rating ‘TBC’.


Apartment 1, Pen Y Garth Mansions, 2 Stanwell Road, Penarth, CF64 3EA

Floor Plans (1)

Floor plan

Apartment 1, Pen Y Garth Mansions, 2 Stanwell Road, Penarth, CF64 3EA

£675,000

Similar Properties near Penarth

  • 38 Melrose Walk, Sully, CF64 5WD
    • Sold

    38 Melrose Walk, Sully, CF64 5WD

    4 bed detached house for sale

    £699,950

  • 107 Lavernock Road, Penarth, CF64 3QG
    • SSTC

    107 Lavernock Road, Penarth, CF64 3QG

    3 bed semi-detached house for sale

    Offers In Excess Of £699,950

  • 76 South Road, Sully, CF64 5SL

    76 South Road, Sully, CF64 5SL

    5 bed detached bungalow for sale

    £675,000

  • 17 Charteris Close, Penarth, CF64 5RT

    17 Charteris Close, Penarth, CF64 5RT

    3 bed detached bungalow for sale

    Offers In Excess Of £650,000

Register interest now

Let’s talk

Update your browser to view this website correctly. Update my browser now

×