4 bed detached house for sale
Guide Price £899,950
Property Type
Detached House
Bedrooms
4
Living Rooms
4
Bathrooms
2
A wonderful four-bedroom detached property set on generous grounds of just under 2 acres, positioned in a private yet easily accessible location within the village of Pencoed. The property is conveniently situated close to Junction 35 of the M4 and Pencoed train station, with a range of village shops and schools nearby. Offering huge potential, the accommodation briefly comprises: entrance hall, lounge, sitting room, dining room, kitchen/breakfast room, utility, WC, study and a studio complete with sauna. To the first floor, there is a spacious landing with a sitting area, a principal bedroom with en-suite shower room, three further well-proportioned bedrooms and a family bathroom. Externally, the property enjoys a substantial plot of just under two acres, featuring a private driveway with ample off-road parking, a double garage, three versatile barns and beautifully landscaped grounds with various seating areas.
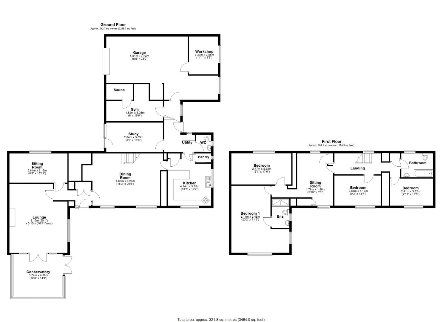
About The PropertyEntered into the main hallway, the property offers carpeted flooring, a built-in storage cupboard and access to all ground-floor rooms. The living room, positioned at the front of the home, is a generous family space featuring a central stone fireplace, carpeted flooring and double doors opening into a bright sunroom. The sunroom enjoys tiled flooring and windows overlooking the front grounds, creating a peaceful additional seating area. The sitting room provides a second spacious reception room with carpeted flooring and rear-facing windows. The dining room enjoys front-facing windows, carpeted flooring and a staircase rising to the first-floor landing. A charming inglenook stone fireplace with a wood-burning stove set on a slate hearth forms a striking focal point, and there is ample space for a family dining table. The kitchen/breakfast room is fitted with a range of coordinating wall and base units, complementary work surfaces and tiled splashbacks. Additional features include tiled flooring, windows to the front and side, a built-in breakfast bar with space for stools, exposed ceiling beams and a generous pantry cupboard. Integrated appliances include a 4-ring gas hob with oven, grill and extractor fan, under-counter fridge and dishwasher. The utility room provides further base units, work surfaces and space/plumbing for appliances, and leads into the ground-floor cloakroom, fitted with a WC and wash-hand basin. The ground floor also benefits from a fantastic office space with its own door and window to the front, offering direct external access. An inner hallway provides a further door to the rear and access to the garage, along with a superb home gym/studio featuring a bespoke built-in sauna.
The first-floor landing is a generous space, featuring carpeted flooring, rear-facing windows and access to all rooms. The landing also offers a useful seating area, built-in storage and a cloakroom fitted with a WC and wash-hand basin. The landing offers windows to both the front and rear aspects. Bedroom One is a spacious double bedroom with built-in wardrobes, carpeted flooring and front-facing windows. It leads into an en-suite shower room fitted with a double walk-in shower, WC and wash-hand basin, with tiled walls and a side-facing window. Bedroom Two is another generous double bedroom with carpeted flooring and a rear-facing window. Bedroom Three is a further double bedroom featuring built-in wardrobes, carpeted flooring and front-facing windows. Bedroom Four is also a double bedroom, complete with carpeted flooring and front-facing windows. The family bathroom is fitted with a three-piece suite comprising a panelled bath, WC and wash-hand basin, and benefits from a rear-facing window.
Gardens And GroundsPentwyn Cottage occupies a generous plot of just under two acres, offering exceptional outdoor space and a wonderful sense of privacy. A spacious driveway provides off-road parking for numerous vehicles and leads to a substantial double garage with an adjoining workshop. The grounds are predominantly laid to lawn, complemented by a large paved patio area ideal for outdoor furniture and entertaining. Additional features include a greenhouse, summerhouse and storage shed. A further summerhouse with a decked seating area provides an inviting spot to relax, with space available for a wood-fired hot tub. The plot also includes an enclosed paddock, complete with three versatile barns and its own separate access, making it ideal for a range of uses such as small-scale livestock, storage or hobby pursuits.
Additional InformationFreehold. All mains services connected. LPG gas. Cesspit drainage. EPC Rating; ‘E’. Council Tax is Band "H".
Security alarm system fitted.
Llanilid, Pencoed, Bridgend County Borough, CF35 5HU
Guide Price £899,950
Register interest now
Update your browser to view this website correctly. Update my browser now