2 bed semi-detached bungalow for sale
Guide Price £310,000
Property Type
Semi-Detached Bungalow
Bedrooms
2
Living Rooms
1
Bathrooms
1
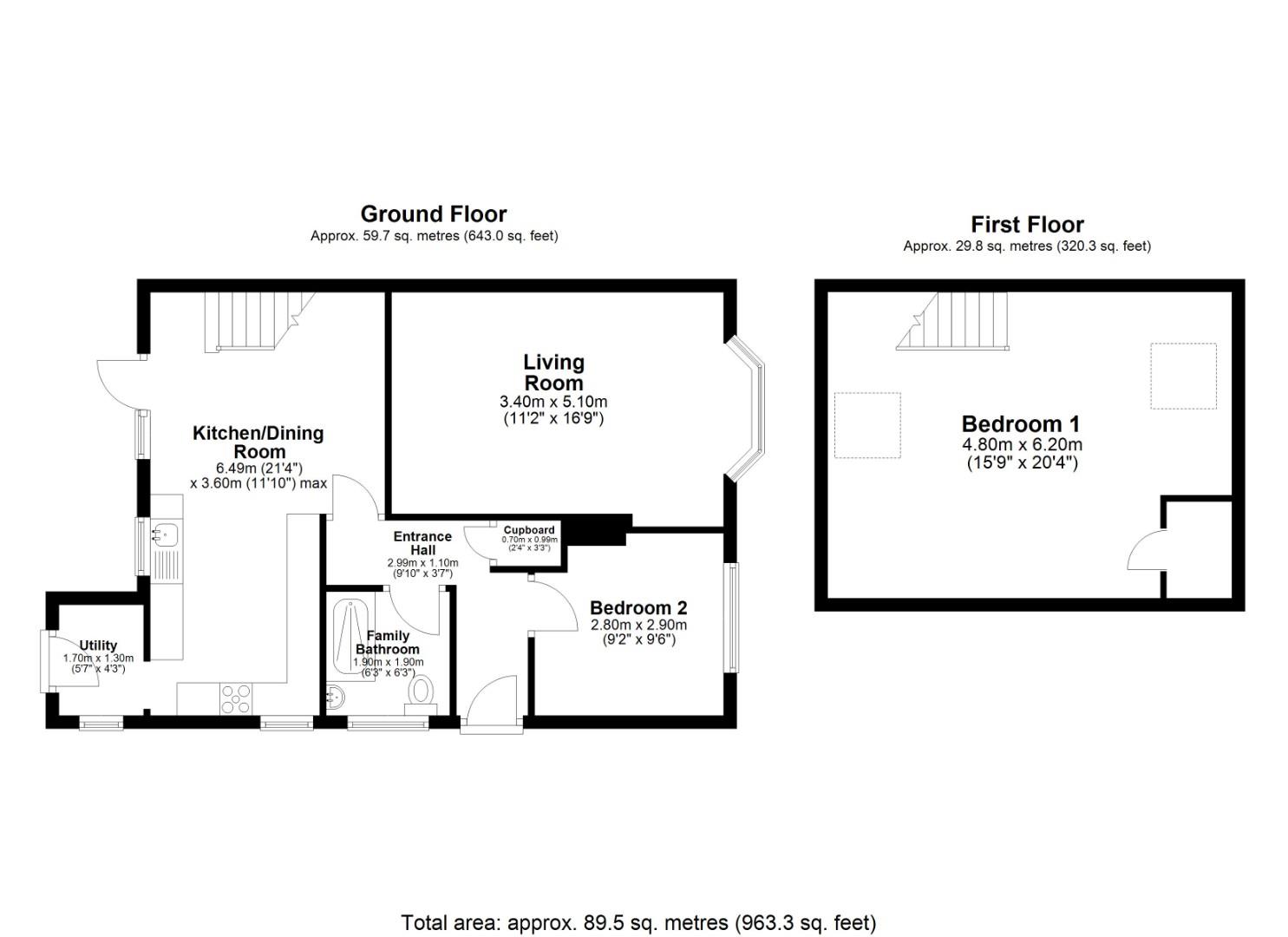
A beautiful two bedroom semi detached bungalow located in a popular location in Porthcawl within walking distance of local amenities, shops, schools and close to Porthcawl Town Centre. Accommodation comprises of entrance hallway, living room, family bathroom, bedroom, kitchen/dining room and utility room to the ground floor. To the first floor, one large main bedroom with Velux windows. Externally offering a large front driveway providing off-road parking for multiple vehicles and an enclosed rear garden with large summer house. No onward chain.
About The PropertyThe property is entered via a PVC front door into the entrance hallway, which benefits from having carpeted flooring and a useful store cupboard.
The second bedroom is positioned to the front of the property, which features the continuation of the carpeted flooring and a front facing window.
The spacious living room features carpeted flooring and has a large front facing bay window, allowing plenty of light to fill the room.
The family bathroom benefits from tiled flooring and a side facing window and is fitted with a three-piece suite comprising a wash hand basin, WC, and large walk in shower.
The large kitchen/dining room benefits from continuation of the parquet flooring through the dining room and tiled flooring to the kitchen. The open plan room enjoys two rear-facing windows and a side-facing window and provides access to the rear garden via a single patio door as well as access to the first floor via a carpeted staircase. The kitchen is fitted with a range of modern base units with complementary work surfaces. Appliances include a dishwasher, which can be removed upon request.
The small utility room leads off from the kitchen which includes a continuation of the tiled flooring, as well as a side facing window and access to the rear garden via a single patio door. There is also a fridge freezer included, which can be removed upon request.
To the first floor is the main bedroom which is a very spacious double room and features carpeted flooring and 2 large Veulx windows, allowing the room to feel bright and airy. The room also benefits from having storage in the eaves.
Gardens And GroundsApproached off St. Michaels Road, number 20 enjoys a large frontal driveway, providing off road parking for multiple vehicles, which is bordered by walling. There is a fully enclosed rear garden with a combination of patio and lawned areas, all bordered by secure fencing. There is also a large summer house with electric supplied.
Additional InformationFreehold. All mains services connected. EPC Rating; ‘D’. Council Tax is Band 'C'.
St. Michaels Road, Porthcawl, Bridgend County Borough, CF36 5SB
Guide Price £310,000
Register interest now
Update your browser to view this website correctly. Update my browser now